Ida-Viru maakond, Jõhvi vald, Jõhvi linn, Kirde tn 27

  • 129 900 €
  • 1 110 € /m2

Müüa
Ida-Viru maakond, Jõhvi linn, Kirde tn 27
  • 129 900 €
  • 1 110 € /m2

ILUS JA KORRAS MAJA JÕHVI ROHELISES AEDLINNAS!

Müüa Jõhvi aedlinnas kinnistu ilusa elumaja ja saunaga.

Ehitisregistri järgi asub kinnistul:

– elumaja, netopinnaga 117 m2, 2-korruseline
– abihoone- saun + kuur, netopinnaga 73 m2
– kaev

MAJA
Maja on madalvundamendil, puitmaja, soojustatud villaga, väljast kaetud laudisega, plekk-katus, ahiküte, puupliit.

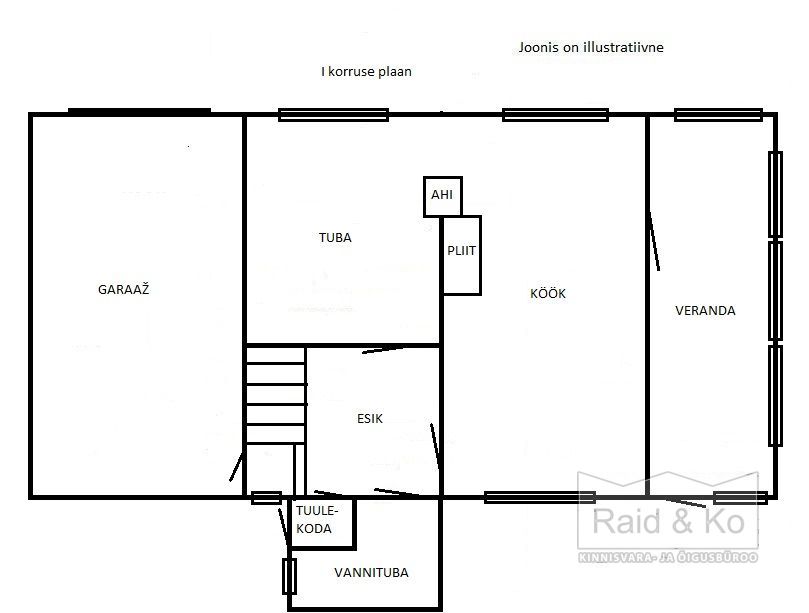
1. korrus
– elutuba – 12 m2,
– avar köök (läbi maja)- 16 m2,
– vannituba/wc – 6m2,
– esik – 7 m2 (esikust pääseb nii kööki kui elutuppa kui ka vannituppa ja ka 2. korrusele),
– veranda – 10 m2 (suvetuba) (verandale pääseb köögist, verandalt on ka väljapääs õuealale)
– garaaž – 15 m2 (olemas kanal 3,6 m × 0,9 m)

2. korrus
– suur tuba 22 m2- (elutoaks või magamistoaks),
– keskmine elutuba – 17 m2 (trepp suubub väiksemasse elutuppa),
– magamistuba 12 m2 (pääseb läbi väiksema elutoa).

Maja on hästi hoitud, seda on tasapisi aegadega renoveeritud, parendatud, soojustatud, kaasajastatud. Dokumentatsioon vastab tegelikkusele.
Hindamisakt prognoosi kohaselt tuleb 123000-125000 eurot.

Maja on hubane peremaja, piisavalt ruumi on all ja üleval.
Majas on tsentraalne vesi ja kanalisatsioon.
Lisaks on kinnistul puurkaev, kastmisvesi on oma kaevust.
Elekter on 1-faasiline, peakaitse 25A.
Elektrisüsteem ja el kilp on uuendatud.
Kütteks on 1. korrusel uus valge ahi, mis annab õhuluugi kaudu sooja ka ülemisele korrusele, lisaks kaasaegne puupliit. 2. korrusel puuküttega kamin, mis samuti annab kiiresti head sooja. Vajadusel lisasooja saamiseks olemas õhksoojuspump.
Võimalus ka liituda tsentraalse gaasiküttega.
Vannituba on renoveeritud ja esiku arvelt suurendatud paar aastat tagasi. Soe vesi on elektriboilerist.
Väike juurviljakelder on köögi all.
Garaažis on valatud põrand, kiviplokk seinad, väljast kaetud laudisega, 2 akent hoovi poole, ning põrandas valatud põhjaga 3,6 m pikkune korralik kanal.
Hoovis on kaks avarat kasvuhoonet (12 x 4 m ja 10 x 4 m). Üks on köetav.
Hoovis kasvavad viljakandvad õunapuud, pirnipuu, põõsad.
On olemas ülesharitud peenramaa osa. Muld on väga viljakas.
Kõik kasvab hästi.

SAUN
Saunas on kaminaruum, pesuruum, leiliruum.
Saun on puuküttega kerisega, hästi toimiv, kasutatakse tünnivett, äravool lokaalne.
Sauna kõrval on 2 avarat kuuri, kus saab hoiustada kütet.

Piirkond on vaikne, roheline, linnulaulune.
Ümberringi eramud.
Lähedal on Coop/Konsum, kaunis Pühajõgi.
Jalutustee kaugusel on Keskväljak, bussijaam, atraktiivne Jõhvi promenaad (ainult jalutajatele), Jõhvi Kontserdimaja, Apollo kino, Selver, Coop, Jõhvi Mihkli kirik, Jõhvi linna park ja allee, laste mänguväljakud, turg, jpm.
Jõhvi rongijaam ca 2 km.
Jõhvi on korrastatud ja arenev, umbes 10000 elanikuga linn. Siin on riigigümnaasium ja kaks põhikooli, muusikakool, kunstikool, spordikool ja kutsehariduskeskus.
Ujumiskoht ja liivarand on lähedal asuv Toila rand.
14 km kaugusel on Alutaguse Tervisespordikeskus, kus on kaasaegsed tervise- ja seiklusrajad.
Läheduses olemas kõik, mida vajad ja veel rohkemgi.
Siin on hea elada!
Rohkem infot tel 522 5056.

Laenukalkulaator

Summa kuus
  • Laenumakse (k)
  • Maamaks (a)
  • Kodukindlustus (a)
  • Laenukindlustus (k)
%

Sarnased pakkumised

Võrdle objekte

Võrdle
Eha Vahersalu
  • Eha Vahersalu