Harju maakond, Saku vald, Üksnurme küla, Talve tee 69

  • 189 000 €
  • 998 € /m2

Müüa
Harju maakond, Üksnurme küla, Talve tee 69
  • 189 000 €
  • 998 € /m2

UUS GARAAžIGA KIVIMAJA! SAKU 1,5 KM!

ASUKOHT
Müüa vaikses ja rahulikus piirkonnas, tupiktänavas, Saku lähedal pooleliolev kivimaja. Uus omanik ehitab juba edasi.
Saku Selver, lasteaed, bussipeatus (tihe bussiühendus Tallinnaga) jäävad 2 km kaugusele. Rongijaam asub 2,5 km kaugusel.
Ümbruses valmis või valmivad eramud.
MAJA
Korralik kivimaja – seinad Aeroc plokist, kivikatus ja 3 x klaaspakettaknad.
Ettevalmistused on tehtud vesipõrandakütte torustiku paigaldamiseks – paigaldatud armatuurvõrk ja 200 mm penoplast soojustuseks.
Paneelvahelaed. Garaaž.
Esimesel korrusel asuvad suur söögi- ja elutuba 45,2 m2 (võimalus paigaldada ka kamin), köök (9,6 m2),1 tuba-kabinet (7,8 m2), saun (4 m2, puuküttega), pesuruum (10,8 m2), WC, esik (11,6 m2), tuulekoda (5 m2), garaaž (20,9 m2) ja tehnoruum (12 m2).
Söögi- ja elutoast pääseb suurele (50 m2) päikesepoolsele terrassile, mis ulatub maja kahele küljele.
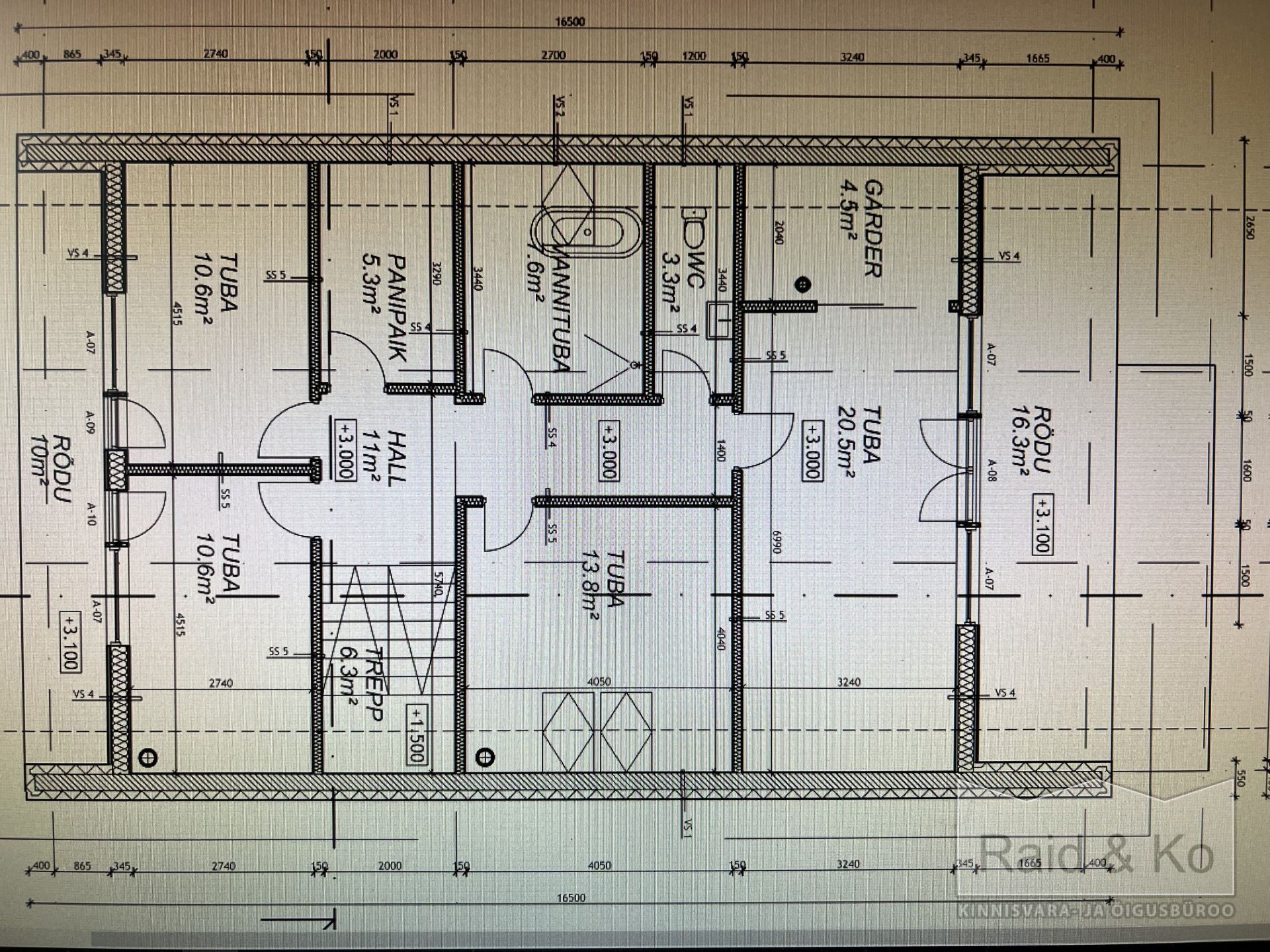
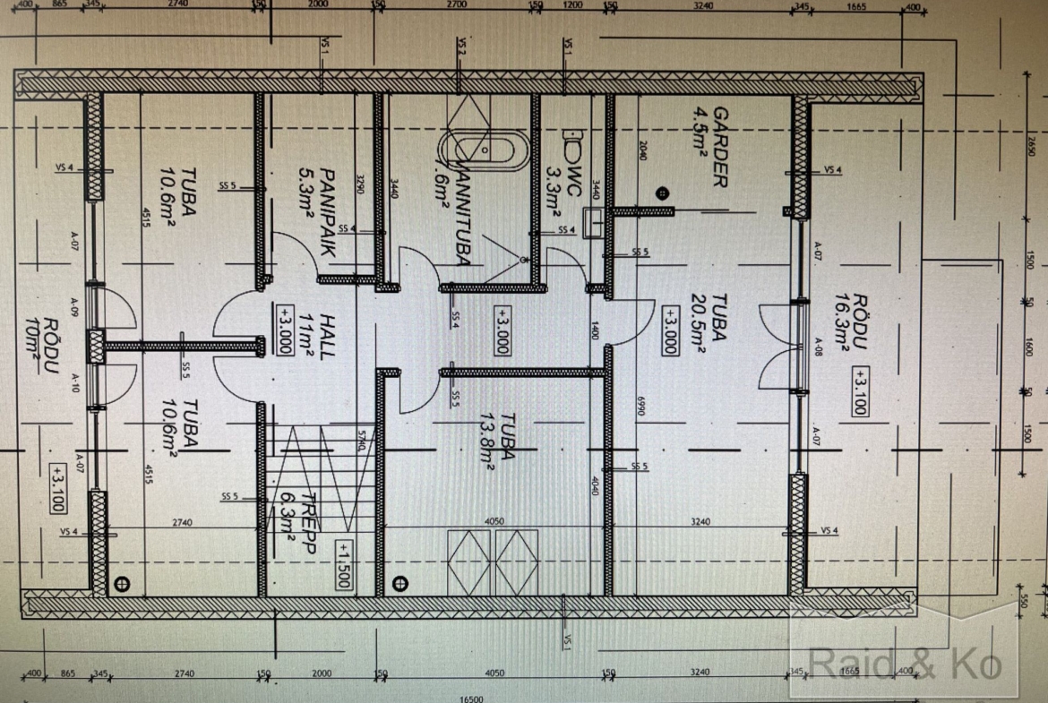
Teisel korrusel asuvad 4 magamistuba (10,6 m2, 10,6 m2, 13,8 m2 ja suur magamistuba (20,5 m2) koos garderoobi (4,5 m2) ja suure (16,3 m2) rõduga.
Teisel korrusel on veel teinegi rõdu (10 m2), kuhu pääseb kahest magamistoast.
Teisele korrusele jäävad veel hall (11 m2), vannituba (7,6 m2), panipaik (5,3 m2) ja WC (3,3 m2).
KOMMUNIKATSIOONID
Tsentraalne vesi ja kanalisatsioon on toodud juba majja. Elekter 3 x 16 A.
Majja on mõeldud paigaldada soojustagastusega ventilatsioonisüsteem.
Vesipõrandaküte (plaan oli paigaldada õhk-vesisoojuspump.

Laenukalkulaator

Summa kuus
  • Laenumakse (k)
  • Maamaks (a)
  • Kodukindlustus (a)
  • Laenukindlustus (k)
%

Sarnased pakkumised

Võrdle objekte

Võrdle
Ave Siim
  • Ave Siim