Pärnu maakond, Lääneranna vald, Lihula linn, Tallinna mnt 55

  • 140 000 €
  • 6 € /m2

Müüa
Pärnu maakond, Lihula linn, Tallinna mnt 55
  • 140 000 €
  • 6 € /m2

MAA JA HOONED ELAMU NING ÄRI ARENDUSEKS!

Maa ja hooned elamu ning äri arenduseks!

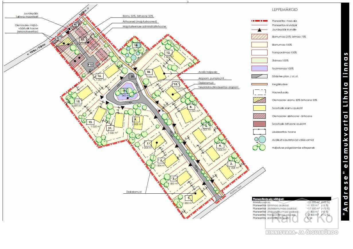
Kinnistul on 13 ehitist ja rajatist ehitusaluse pinnaga 1503 m². Elamu ja kaks abihoonet ehitatud 1924/25. a, ülejäänud hilisemast ajajärgust. Tallinna mnt poolne ala elamuga jääb muinsuskaitse alale.
Kinnistu sihtotstarve 60% elamumaa ja 40% ärimaa. Ligi 3/4 kinnistust on hoonestamata, õuemaa 3162 m², muu maa 20138 m². Tehtud DP eskiisplaan elamukruntideks jagamiseks, plaanis detailplaneeringu algatamine.
Olemas tööstusvool 3 x 100 A ja 3 x 20 A, liitumised vee ja kanalisatsiooniga.
On olemasolevate ehitiste inventariseerimisjoonised, palun küsige ja ma saadan lingi.
Lihula on olnud juba 805 aastat teede ja ideede kohtumispaigaks!
Lihula vald, elanike arv 2351 (01.01.2015), keskus Lihula linn, elanike arv 1295 (01.01.2015). Esindatud on toiduainete-, tekstiili-, õmblus- ja ehitusmaterjalide tööstus, samuti turba tootmise, transpordi-, autoremondi-, ehitus- ja metallitöö ettevõtted.
Lihula vallas tegutsevad gümnaasium, algkool, lasteaed, muusika- ja kunstikool, kultuurimaja, neli raamatukogu ja muuseum.

Palun helistage 505 4636, kl 9-21 või kirjutage margus@raid.ee ja arutame teie hinnapakkumist!

Laenukalkulaator

Summa kuus
  • Laenumakse (k)
  • Maamaks (a)
  • Kodukindlustus (a)
  • Laenukindlustus (k)
%

Sarnased pakkumised

Võrdle objekte

Võrdle
Margus Kuusik
  • Margus Kuusik